Ihr neues Zuhause: Erstbezug nach Kernsanierung – modern & energieeffizient
-
Das Haus – Kernsanierung auf Neubaustandard
Das ursprünglich 1971 errichtete Mehrfamilienhaus wurde im Jahr 2025 einer umfassenden Kernsanierung unterzogen und präsentiert sich nun auf dem Stand eines energieeffizienten Neubaus. Dabei wurde nicht nur die Optik modernisiert, sondern die gesamte Gebäudetechnik erneuert:
+ Fassade & Dämmung: neues Wärmedämmverbundsystem für optimale Energieeffizienz
+ Dach: komplett neu aufgebaut und gedämmt
+ Fenster: moderne 3-fach-verglaste Kunststoff-Isolierfenster, teilweise bodentief
+ Hausinfrastruktur: sämtliche Elektro-, Wasser- und Abwasserleitungen neu verlegt
+ Heizung & Klima: moderne Luft-Wasser-Wärmepumpe, Fußbodenheizung in allen Wohnungen, dezentrale Wohnraumlüfter in allen Räumen
+ Photovoltaik: eigene Stromerzeugung über eine PV-Anlage
Die sechs Wohnungen bieten unterschiedliche Grundrissvarianten von 2 bis 4 Zimmern mit Wohnflächen zwischen ca. 50 m² und 112 m². Die beiden Erdgeschosswohnungen verfügen zusätzlich über einen eigenen Gartenanteil und schaffen damit ein ganz besonderes Wohnerlebnis.
Einheitlich präsentieren sich die hochwertigen Bäder, ausgestattet mit modernen Sanitärobjekten, bodengleichen Duschen mit Echtglasabtrennungen, Rainshower-Duschen sowie großformatigen, anthrazitfarbenen Bodenfliesen.
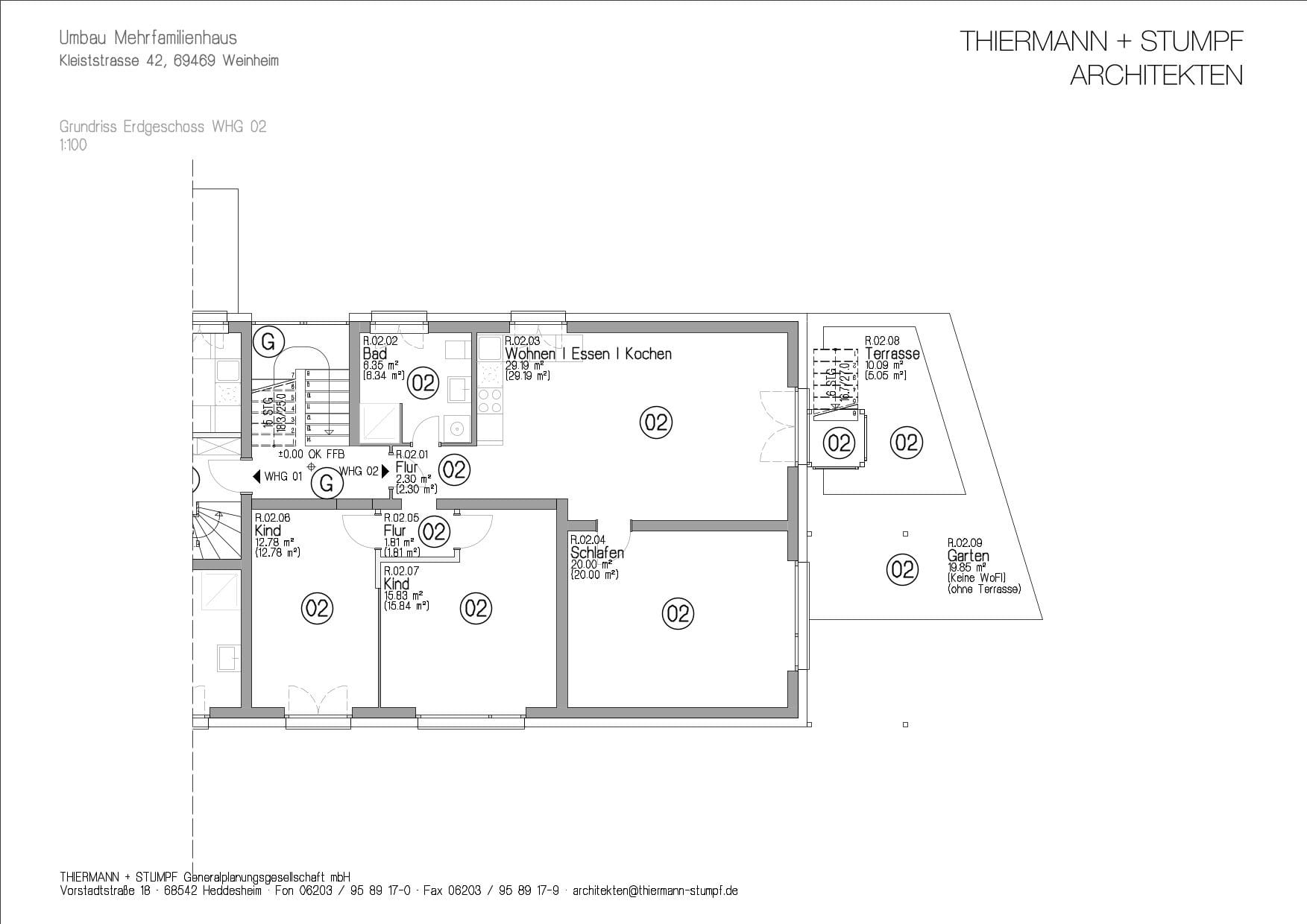
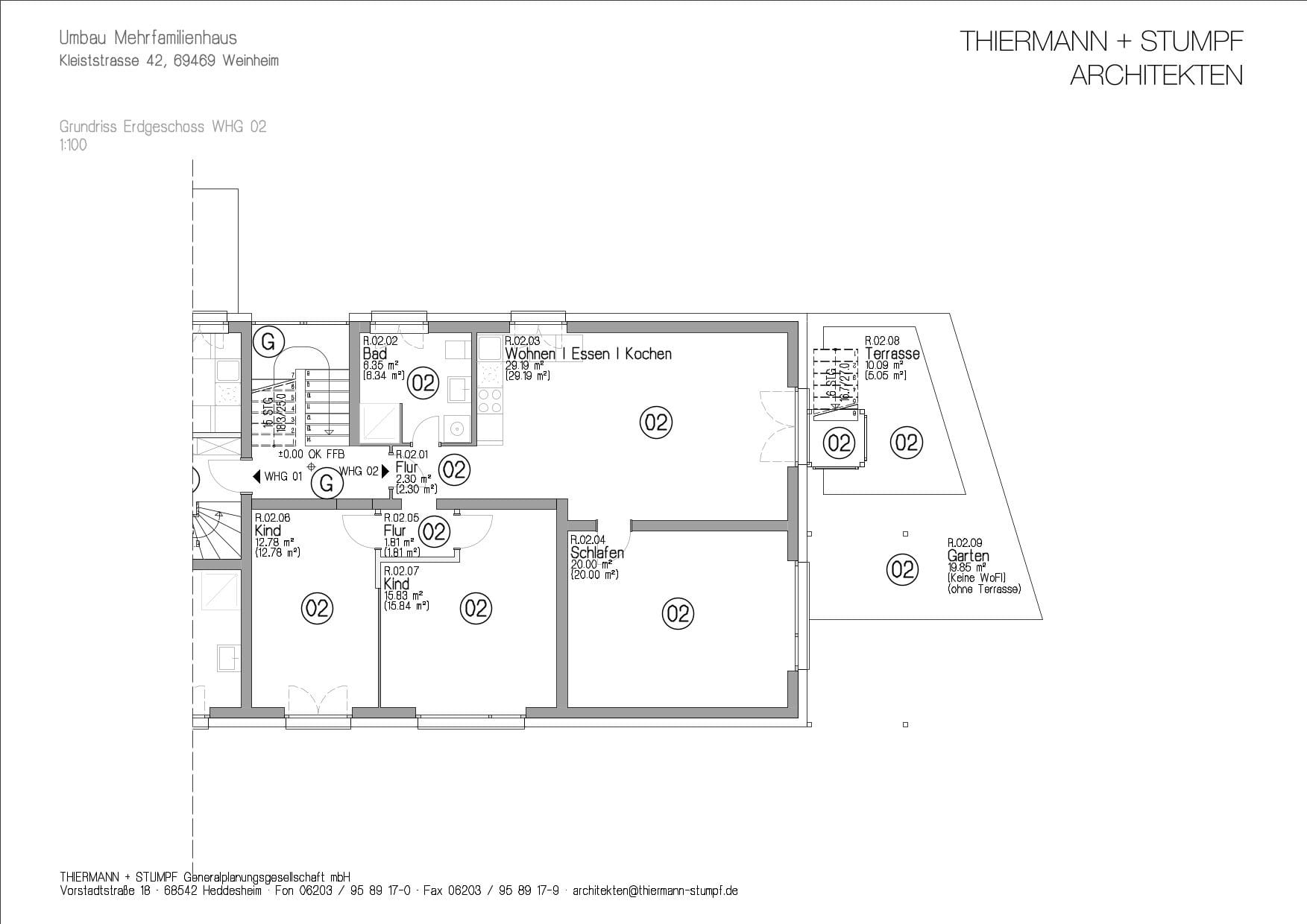
Diese großzügige, modern geschnittene und lichtdurchflutete Erdgeschosswohnung überzeugt durch ihre offene Raumgestaltung, hochwertige Ausstattung und vielfältige Nutzungsmöglichkeiten auf einer Ebene mit rund 93 m² Wohnfläche.
Das Herzstück der Wohnung ist die helle Wohnküche mit offenem Grundriss und der Vorbereitung für eine Kochinsel – ideal für alle, die Kochen und Geselligkeit verbinden möchten. Sie öffnet sich harmonisch zum weitläufigen Wohn- und Essbereich und schafft so ein großzügiges Raumgefühl mit fließenden Übergängen. Große Fensterfronten sorgen für eine freundliche, lichtdurchflutete Atmosphäre.
Drei weitere, gut geschnittene Zimmer lassen sich flexibel als Schlafzimmer, Kinderzimmer oder Homeoffice nutzen – ideal für individuelle Wohnkonzepte.
Das stilvolle Masterbad beeindruckt mit eleganten, großformatigen anthrazitfarbenen Fliesen, einer bodengleichen Dusche mit Echtglasabtrennung und einer luxuriösen Rainshower-Dusche.
Abgerundet wird dieses attraktive Angebot durch ein eigenes Kellerabteil sowie ein Stellplatz direkt vorm Haus. -
Flächen
- Wohnfläche: 93 m²
- Zimmer insgesamt: 4
- Stellplätze: 1
- Stellplatzart: Freiplatz
- Terrassen: 1
Zustand & Erschließung
- Baujahr: 1971
- Zustand: vollsaniert
- Letzte Modernisierung: 2025
- Bauweise: Massiv
- Keller: voll unterkellert
-
Ausstattungsdetails der Wohnung
+ 4 Zimmer mit offener Wohnküche
+ Drei helle, flexibel nutzbare Zimmer (Schlafen, Kinder, Arbeiten)
+ Direkter Zugang von Wohn- und Essbereich zur Terrasse
+ Masterbad mit Tageslicht, bodengleicher Dusche & Echtglasabtrennung
+ Großformatige, anthrazitfarbene Bodenfliesen im Bad
+ Fußbodenheizung in allen Räumen
+ Dezentrale Wohnraumlüfter
+ 3-fach-verglaste Fenster, teilweise bodentief
+ Terrasse
+ Kellerraum
+ Außenstellplatz
- Art der Ausstattung: gehoben
- Heizungsart: Fußbodenheizung
- Befeuerung: Elektro, Luft-Wärmepumpe
- Bodenbelag: Fliesen, Parkett
- Badausstattung: Dusche, Fenster
-
- Energieausweis-Art: Bedarf
- Energieausweis gültig bis: 05.12.2035
- Endenergiebedarf: 13,90 kWh/(m²*a)
- Primärenergieträger: Elektroenergie
- Energieeffizienzklasse: A+
- Baujahr (Energieausweis): 1971
- Energieausweis-Ausstellungsdatum: 05.12.2025
- Energieausweis-Jahrgang: ab Mai 2014
- Energieausweis-Gebäudeart: Wohngebäude
- Energieausweis-Anmerkungen: Bj. Wärmeerzeuger lt. E-Ausweis 2025
Endenergiebedarf dieses Gebäudes13,90 kWh/(m²·a)0255075100125150175200225>250Bj. Wärmeerzeuger lt. E-Ausweis 2025
-
Der Weinheimer Stadtteil Sulzbach liegt idyllisch an der Bergstraße und verbindet den Charme eines gewachsenen Ortskerns mit der Nähe zu urbanen Zentren. Durch die gute Anbindung an die Bundesstraße B3 sowie den S-Bahn-Haltepunkt Weinheim-Sulzbach sind sowohl die Weinheimer Innenstadt als auch die Metropolregion Rhein-Neckar mit Mannheim und Heidelberg schnell erreichbar.
Im Ort selbst finden sich eine Grundschule, Kindergärten, Einkaufsmöglichkeiten für den täglichen Bedarf sowie vielfältige Freizeitangebote. Historische Fachwerkhäuser prägen den alten Ortskern, während umliegende Wohngebiete durch viel Grün und eine ruhige Atmosphäre überzeugen.
Für Naturliebhaber bietet das nahegelegene Naturschutzgebiet Steinbruch Sulzbach attraktive Möglichkeiten zum Spazieren, Wandern und Erholen. Auch die Weinberge und Wälder entlang der Bergstraße laden zu Aktivitäten in der Natur ein.
Sulzbach zeichnet sich somit durch eine gelungene Kombination aus ruhigem Wohnen, guter Infrastruktur und hervorragender Verkehrsanbindung aus – ein idealer Standort für Familien und alle, die Stadtnähe und Natur miteinander verbinden möchten.
-
- Kaufpreis: 395.000 €
- Preise zuzüglich Mehrwertsteuer: nein
- Käuferprovision: prov.frei
-
-





































